ул Вокзальная, д 24
- Номер объекта:1096
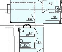
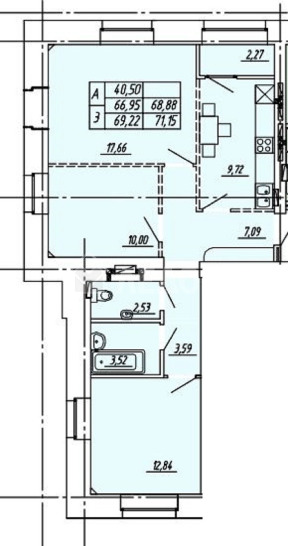
- Тип жилья: 3-комнатная квартира
- Площадь общая: 71.80 м2
- Площадь жилая: 41.00 м2
- Площадь кухни: 10.00 м2
- Остановка транспорта или ориентир: ЖД Вокзал
10 052 000 руб.
140 000 руб./м2
Ответственный за объект:
Чистая продажа, Документы готовы, Возможна ипотека, Военная ипотека, Материнский капитал
Характеристики Объекта
- Тип дома: Улучшенный
- Срок сдачи \ Год постройки: 2025
- Материал стен: Кирпичный
- Этаж / Этажность: 6 / 13
- Планировка: Изолированные комнаты
- Высота потолков: 270
- Сан.узел: Раздельный
- Балкон / Лоджия: Лоджия
- Расположение в доме: Не угловая
- Парковка: Подземная парковка
Дополнительные параметры
- Состояние / Ремонт: Чистовая отделка
- Покрытие пола: Без покрытия
- Входная дверь: Металлическая
- Окна: Пластиковые (ПВХ)
- Вид из окон: Во двор
- Интернет: Есть
- Домофон: Есть
- Счетчики воды: Есть
- Лифт: Есть
- Мусоропровод: Нет
Описание
СЕМЕЙНАЯ ИПОТЕКА 6 % ГОДОВЫХ!
ЦЕЛЬНОКИРПИЧНЫЙ ДОМ 2025 ГОДА, СДАН!
ЕДИНАЯ ЦЕНА С ЗАСТРОЙЩИКОМ БЕЗ КОМИССИЙ!
ПОКАЖЕМ И БЕСПЛАТНО ЗАБРОНИРУЕМ, ЗВОНИТЕ!
Компания "Ледон" предлагает к продаже 3-комнатную квартиру в новом кирпичном доме в центре поселка Привокзальный.
Квартира свободной планировки, окна на 3 стороны света, есть теплая лоджия. Рекомендуемая планировка включает в себя три изолированные комнаты и кухню. Санузел и ванная раздельные.
Квартира сдается в предчистовой отделке. Стены оштукатурены, выровнены, проведена первичная шпатлевка стен. Выполнена стяжка пола и гидроизоляция пола в ванной/санузле. Окна из ПВХ-профиля с откосами и приточной вентиляцией. Установлены современные радиаторы отопления. Электричество заведено до электрощитка, установлены счетчики горячей и холодной воды. В ванной хромированный полотенцесушитепь. Горизонтальная разводка отопления дает эффект теплого пола в отопительный сезон.
Дом цельнокирпичный, толщина наружной стены 3 кирпича (77 см). В доме 2 лифта, грузовой и пассажирский. На первом этаже подъездов оборудована колясочная. На придомовой территории детская и спортивная площадка, подземный паркинг на 37 машино-мест, также оборудована просторная бесплатная парковка.
Дом находится в районе с уже сложившейся инфраструктурой. В 7-8 минутах пешком остановка ЖД Вокзал, откуда можно доехать в любой район города. Прямо у дома остановка Николая Зенькова. Рядом 2 детских сада и 2 общеобразовательные школы, продуктовые магазины, Поликлиника № 2 и Железнодорожная больница.
Квартира подходит под семейную ипотеку 6 % годовых, успейте приобрести!
Звоните!!!
Покажем и бесплатно забронируем квартиру!
Подберем ипотечную программу с максимально комфортным ежемесячным платежом!
Примем Вашу квартиру по схеме трейд-ин в счет покупки данной квартиры!
При бронировании и последующем приобретении квартиры через контактное лицо, указанное в объявлении- в подарок новый ТЕЛЕВИЗОР 4K ULTRA HD диагональю 43 дюйма!
Не подходите под семейную ипотеку???
Подберем аналогичную по планировке квартиру в этом же доме дешевле на 5000 рублей за 1 кв.м.!
ЦЕЛЬНОКИРПИЧНЫЙ ДОМ 2025 ГОДА, СДАН!
ЕДИНАЯ ЦЕНА С ЗАСТРОЙЩИКОМ БЕЗ КОМИССИЙ!
ПОКАЖЕМ И БЕСПЛАТНО ЗАБРОНИРУЕМ, ЗВОНИТЕ!
Компания "Ледон" предлагает к продаже 3-комнатную квартиру в новом кирпичном доме в центре поселка Привокзальный.
Квартира свободной планировки, окна на 3 стороны света, есть теплая лоджия. Рекомендуемая планировка включает в себя три изолированные комнаты и кухню. Санузел и ванная раздельные.
Квартира сдается в предчистовой отделке. Стены оштукатурены, выровнены, проведена первичная шпатлевка стен. Выполнена стяжка пола и гидроизоляция пола в ванной/санузле. Окна из ПВХ-профиля с откосами и приточной вентиляцией. Установлены современные радиаторы отопления. Электричество заведено до электрощитка, установлены счетчики горячей и холодной воды. В ванной хромированный полотенцесушитепь. Горизонтальная разводка отопления дает эффект теплого пола в отопительный сезон.
Дом цельнокирпичный, толщина наружной стены 3 кирпича (77 см). В доме 2 лифта, грузовой и пассажирский. На первом этаже подъездов оборудована колясочная. На придомовой территории детская и спортивная площадка, подземный паркинг на 37 машино-мест, также оборудована просторная бесплатная парковка.
Дом находится в районе с уже сложившейся инфраструктурой. В 7-8 минутах пешком остановка ЖД Вокзал, откуда можно доехать в любой район города. Прямо у дома остановка Николая Зенькова. Рядом 2 детских сада и 2 общеобразовательные школы, продуктовые магазины, Поликлиника № 2 и Железнодорожная больница.
Квартира подходит под семейную ипотеку 6 % годовых, успейте приобрести!
Звоните!!!
Покажем и бесплатно забронируем квартиру!
Подберем ипотечную программу с максимально комфортным ежемесячным платежом!
Примем Вашу квартиру по схеме трейд-ин в счет покупки данной квартиры!
При бронировании и последующем приобретении квартиры через контактное лицо, указанное в объявлении- в подарок новый ТЕЛЕВИЗОР 4K ULTRA HD диагональю 43 дюйма!
Не подходите под семейную ипотеку???
Подберем аналогичную по планировке квартиру в этом же доме дешевле на 5000 рублей за 1 кв.м.!